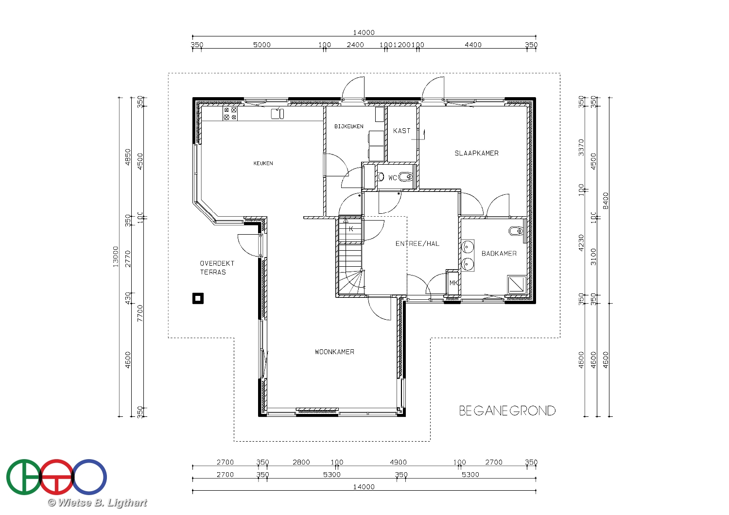
Populairewoning type 424a
Bebouwd oppervlak 145 m2
Inhoud 885 m3
Bouwkosten indicatie €395.000,–
BuroLigthart is gevestigd in de Greidhoeke van Friesland op bedrijventerrein De Banen in Wommels te midden van de Friese Elfsteden. Hoewel het grootste werkgebied Sudwest Fryslan, Waadhoeke, Leeuwarden, Harlingen, deFryskemarren is hebben wij ook vele projecten ver daar buiten! Afspraken op locatie is geen probleem. Wij zijn de spil tussen de bouwwereld en overheid om jou volledig te ondersteunen. Woningen in deze woningcatalogus worden doorgaans in heel Nederland gebouwd!








