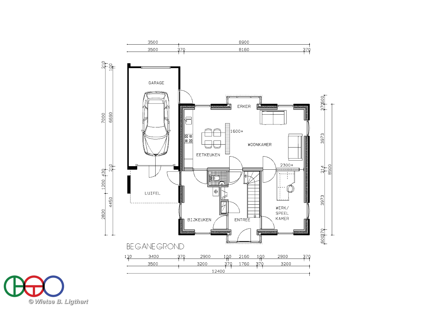
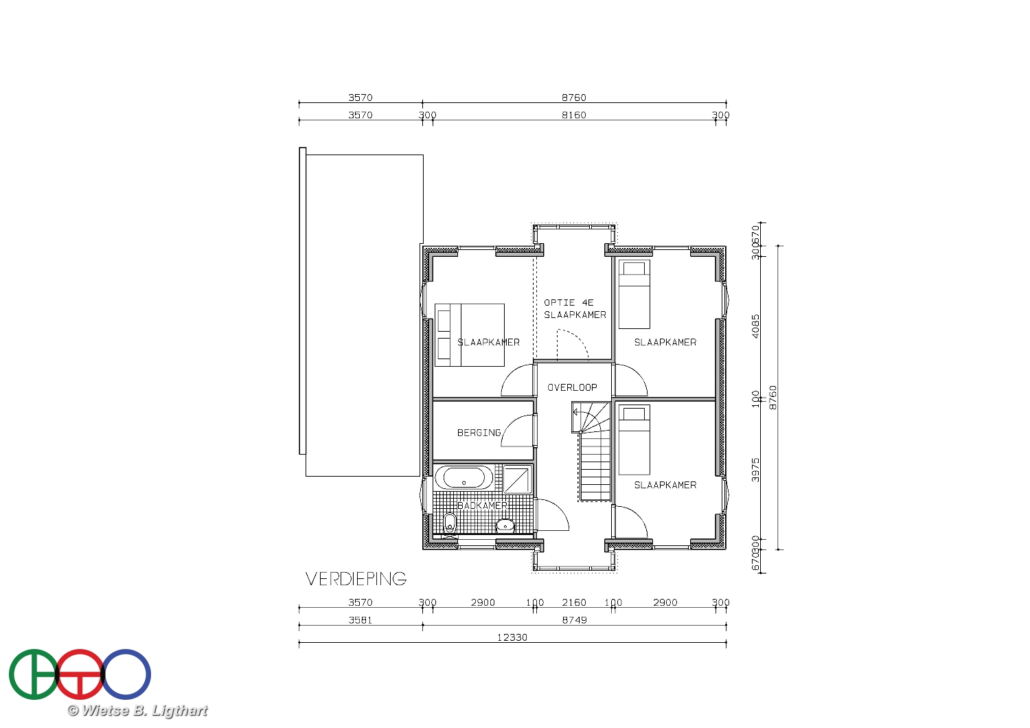
Populairewoning type 894
Bebouwd oppervlak 107 m2
Inhoud 704 m3
BuroLigthart is gevestigd in de Greidhoeke van Friesland op bedrijventerrein De Banen in Wommels te midden van de Friese Elfsteden. Hoewel het grootste werkgebied Sudwest Fryslan, Waadhoeke, Leeuwarden, Harlingen, deFryskemarren is hebben wij ook vele projecten ver daar buiten! Afspraken op locatie is geen probleem. Wij zijn de spil tussen de bouwwereld en overheid om jou volledig te  ondersteunen. Woningen in deze woningcatalogus worden doorgaans in heel Nederland gebouwd!









