Skip to content

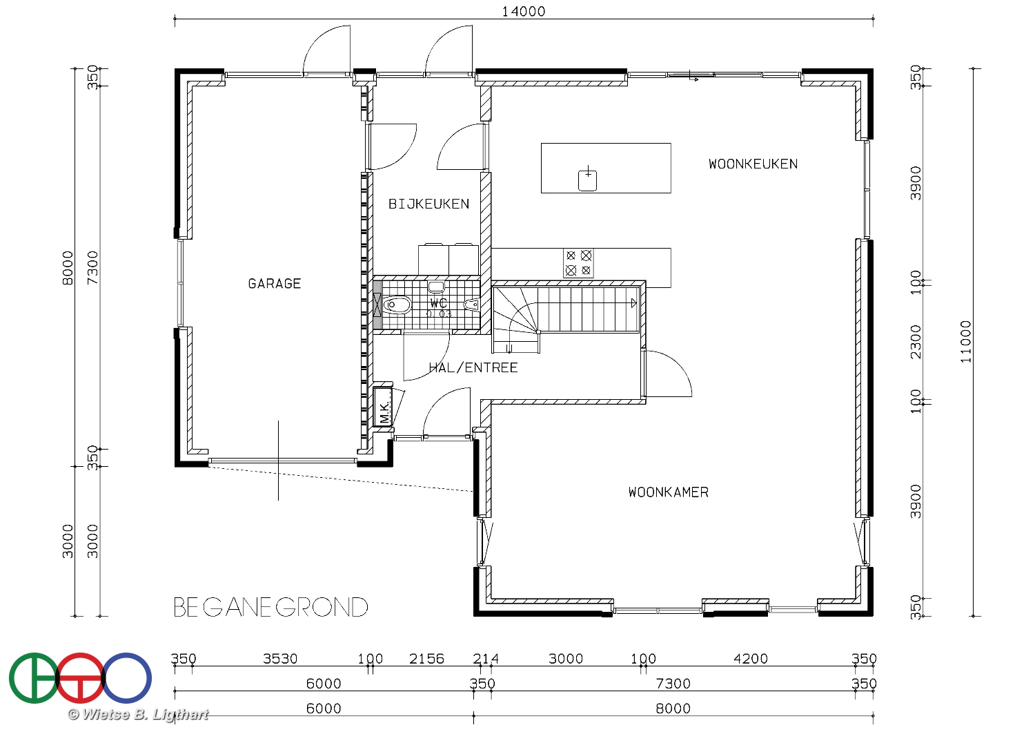
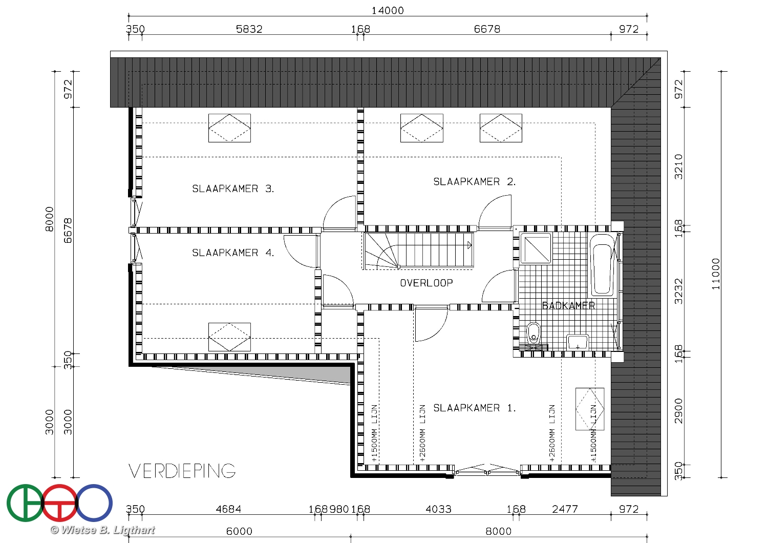
Populairewoning type 1799

Bebouwd oppervlak 136 m2

Inhoud 735 m3

BuroLigthart is gevestigd in de Greidhoeke van Friesland op bedrijventerrein De Banen in Wommels te midden van de Friese Elfsteden. Hoewel het grootste werkgebied Sudwest Fryslan, Waadhoeke, Leeuwarden, Harlingen, deFryskemarren is hebben wij ook vele projecten ver daar buiten! Afspraken op locatie is geen probleem. Wij zijn de spil tussen de bouwwereld en overheid om jou volledig te  ondersteunen. Woningen in deze woningcatalogus worden doorgaans in heel Nederland gebouwd!

Klaar voor de volgende stap?

Kantoor:
de Binnenbaan 2
8731 DV Wommels

Tel: 0515 333075
Mob: 06 54247904
Mail: info@bouw-tekenburo.nl

Back To Top