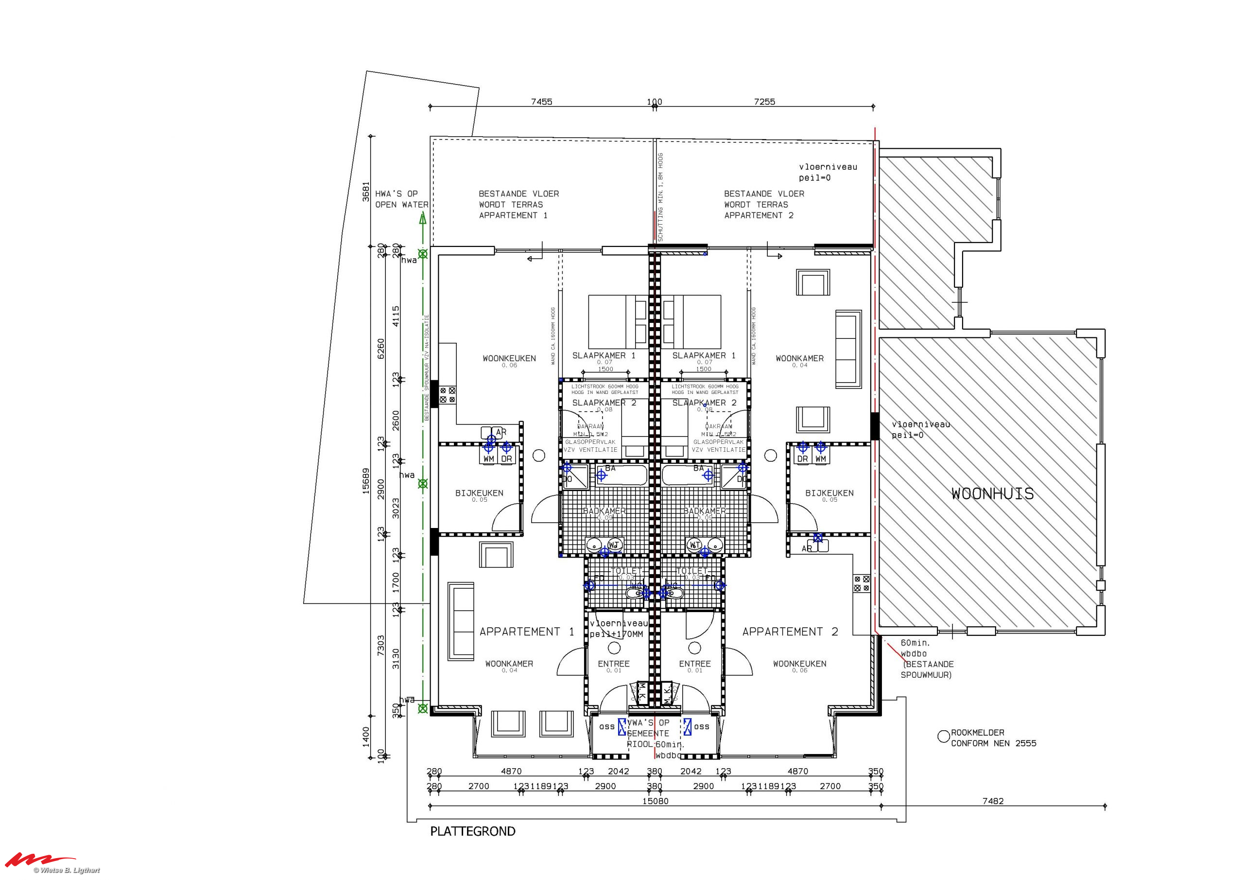
De voormalige supermarkt in het hart van Winsum zal door de eigenaar van Roeltap worden verbouw tot twee woningen die later zullen worden verhuurd. Binnenkort meer info.
De voormalige supermarkt in het hart van Winsum zal door de eigenaar van Roeltap worden verbouw tot twee woningen die later zullen worden verhuurd. Binnenkort meer info.