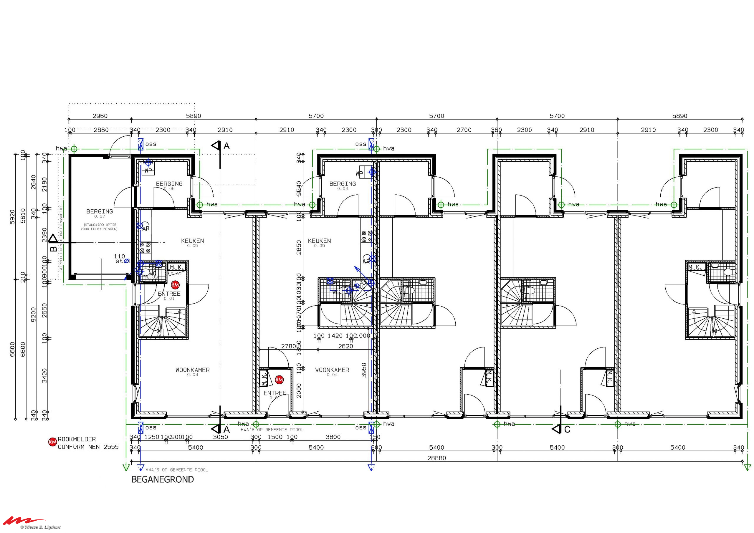
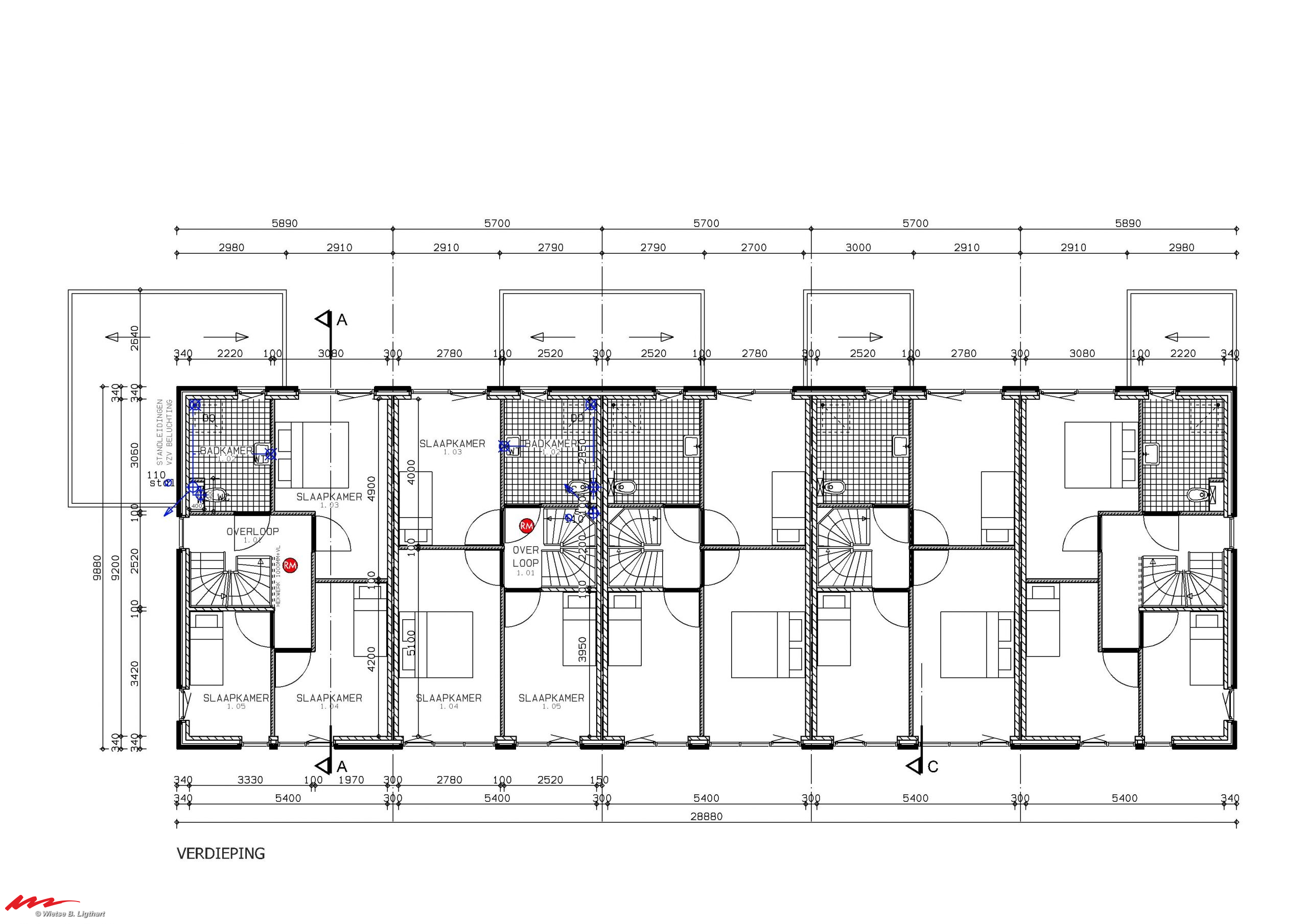
Oplevering van serie woningen te Harlingen op plan Ludinga.
Uitvoering (foto’s) bouwbedrijf Nieuwenhuis & Bouma. De woningen worden traditioneel gebouwd met hoge isolatiewaardes en mede voorzien van aardwarmte en zonnepanelen. Het plan is geheel door ons buro ontworpen en ontwikkeld. Volg Nieuwenhuis & Bouma ook op Facebook.













